Home
>
Modern Villa with Designer Landscaping – Kozyn
Discover a perfect blend of contemporary architecture and professional landscape artistry by MAYA Landscape (2025 Project). This residence is designed for those who value privacy, aesthetics, and outdoor living.
Highlights:
- Architectural Landscaping: A curated garden featuring Korean Fir, Rhododendrons, and a decorative waterfall wall.
- Outdoor Living: Spacious terrace, dedicated fire-pit zone, and a manicured lawn framed by granite boulders.
- Premium Finishes: Natural basalt stepping stones, anthracite gravel, and “floating” concrete stairs with integrated LED lighting.
- Smart Layout: Functional house design with a 2-car carport and seamless indoor-outdoor flow.
- Privacy: Fully fenced perimeter with a lush Brabant Thuja hedge and ivy-covered walls.
Location: Elite community of Kozyn.
Status: Modern 1:150 scale master plan ready for enjoyment.
Residential Complex Details
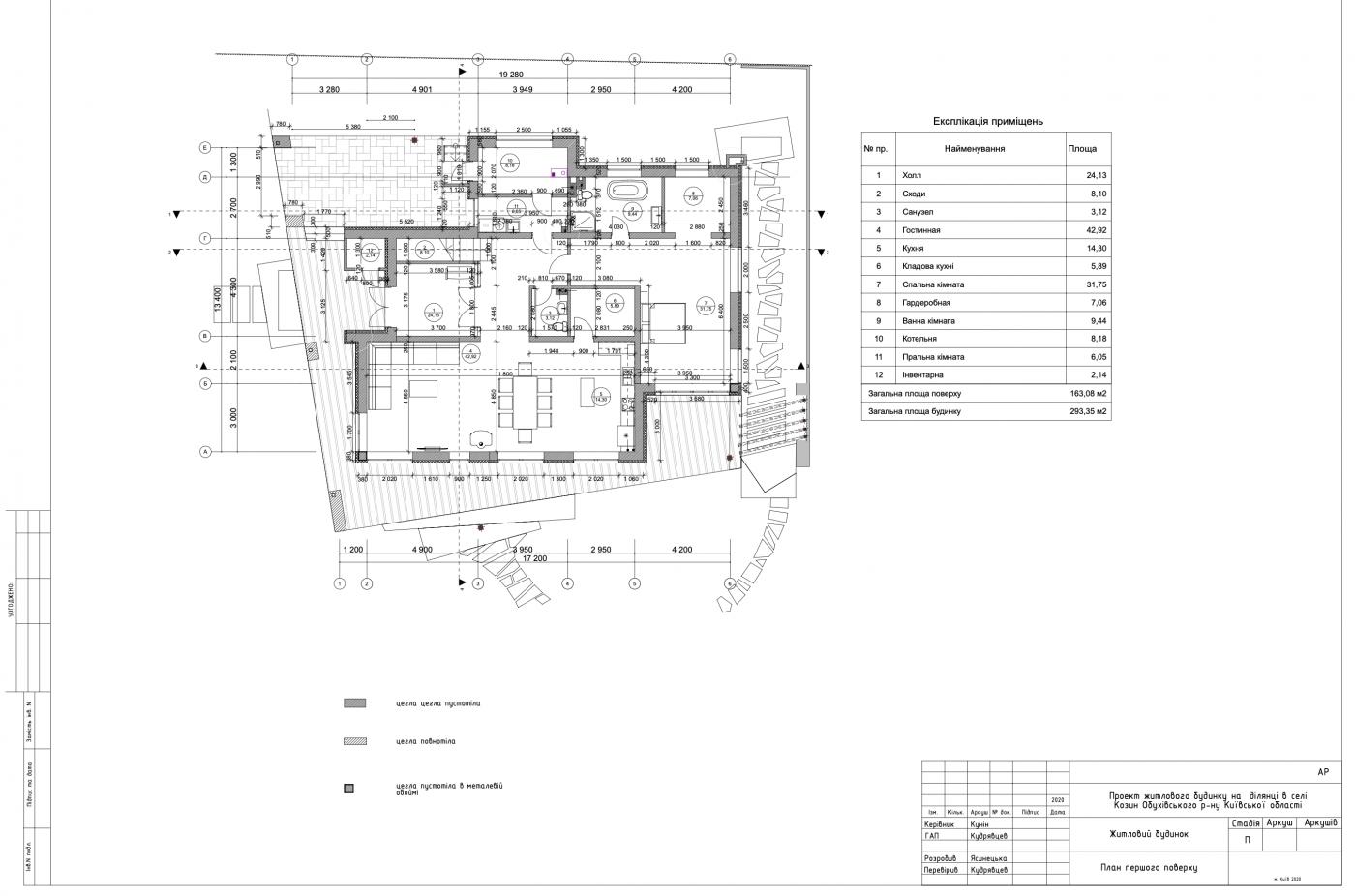
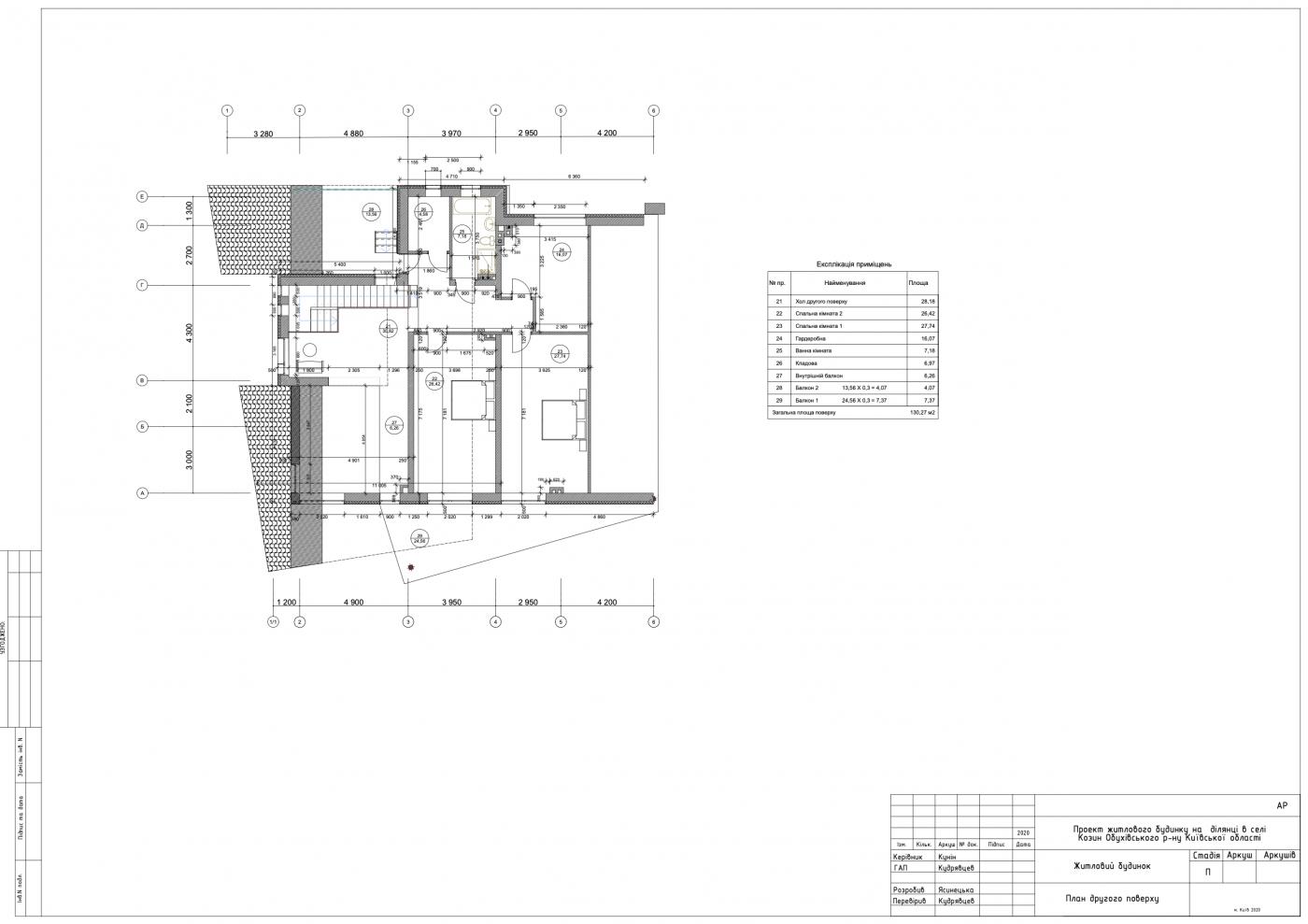
Size
293 m²
Potential Annual Yield
13-16%
Potential Monthly Rent
$8,000
Class
Premium
Investment Metrics
$620,000
Price before fees
$2,116/m²
Price per Square Meter
$8,000
Monthly Rental Potential
13-16%
Potential Annual Yield:
Extremely High Return